estomba
edificio
El lote se sitúa en un barrio tradicionalmente de baja densidad, en el cual predominan las viviendas unifamiliares, algunos edificios de escala baja, y a continuación, sin rejas, la plaza 25 de agosto que ocupa una manzana.
En el frente, una grilla de hormigón modula la fachada, filtra las visuales y contiene los espacios semi cubiertos, cuyo desarrollo es al interior de la línea municipal.
De medianera a medianera se desarrollan canteros lineales que actúan de buffer verde, por un lado, para mantener lo privado de cara a lo público, y por otro lado para responder a la necesidad de expansión semicubierta.
En los últimos pisos, los retiros obligatorios organizan balcones y una terraza para uso común con quincho, deck y terraza verde, pasto, plantas y un árbol de sombra.

una grilla de hormigón modula la fachada y filtra las visuales
En la parte posterior del lote se calza el núcleo de circulación coincidente con el patio vertical, estableciendo un diálogo lleno-vacío. Esta configuración permite despejar la planta y dejarla franca al uso residencial.
La lógica proyectual adoptada combina la posibilidad de densificación y las cualidades barriales, para proponer una volumetría que pisa uniforme la franja edificable de la manzana, en la cual se alojan los pisos de vivienda.

Los servicios comunes y circulaciones fueron proyectados priorizando la economía de recursos y el fácil mantenimiento de lo construído.

- 0Unidades
- 0Pisos
- 0Estudio
- 0PH
- 0Dúplex



amenities y servicios
balcones aterrazados y verde
Decks con lugar para muebles de exteriores y cantero lineal para pantalla verde con plantas autóctonas, enredaderas y mariposas.
amenities
Terraza común arbolada con jardín y propuesta de paisaje. Deck solarium con parrilla en terraza.
servicios eco
Prestaciones individuales. Bajas expensas sin vivienda de encargado. Video vigilancia y control de accesos. Bicicleteros en planta baja.
configuración a medida
Posibilidad de elección de terminaciones a gusto de cada inversor. Pocas unidades de diseños únicos y custom.

ubicación
La zona es de fácil acceso, tiene cercanía al subte B, al ferrocarril Urquiza, y a avenidas principales como Alvarez Thomas, Elcano, Triunvirato, Los Incas.
La proximidad con el acceso norte y la general paz facilitan la conectividad y movilidad en vehículo particular.
[transporte–accesibilidad]
Subte línea B: Estación Tronador.
Tren línea Urquiza: Estación Federico Lacroze.
Bicisenda: Forest (mano única).
Muy buena conectividad con Acceso Norte.[espacios verdes]
Plaza 25 de Agosto. A 2 cuadras. Sin rejas.
Plaza Elcano. A 5 cuadras. Recientemente abierta.
Plaza Miguel de Garikoitz. A 6 cuadras.
Parque Los Andes. 4 manzanas de espacio verde.[referencias]
Puntos de interés.
Plazas.
Transporte.
unidades
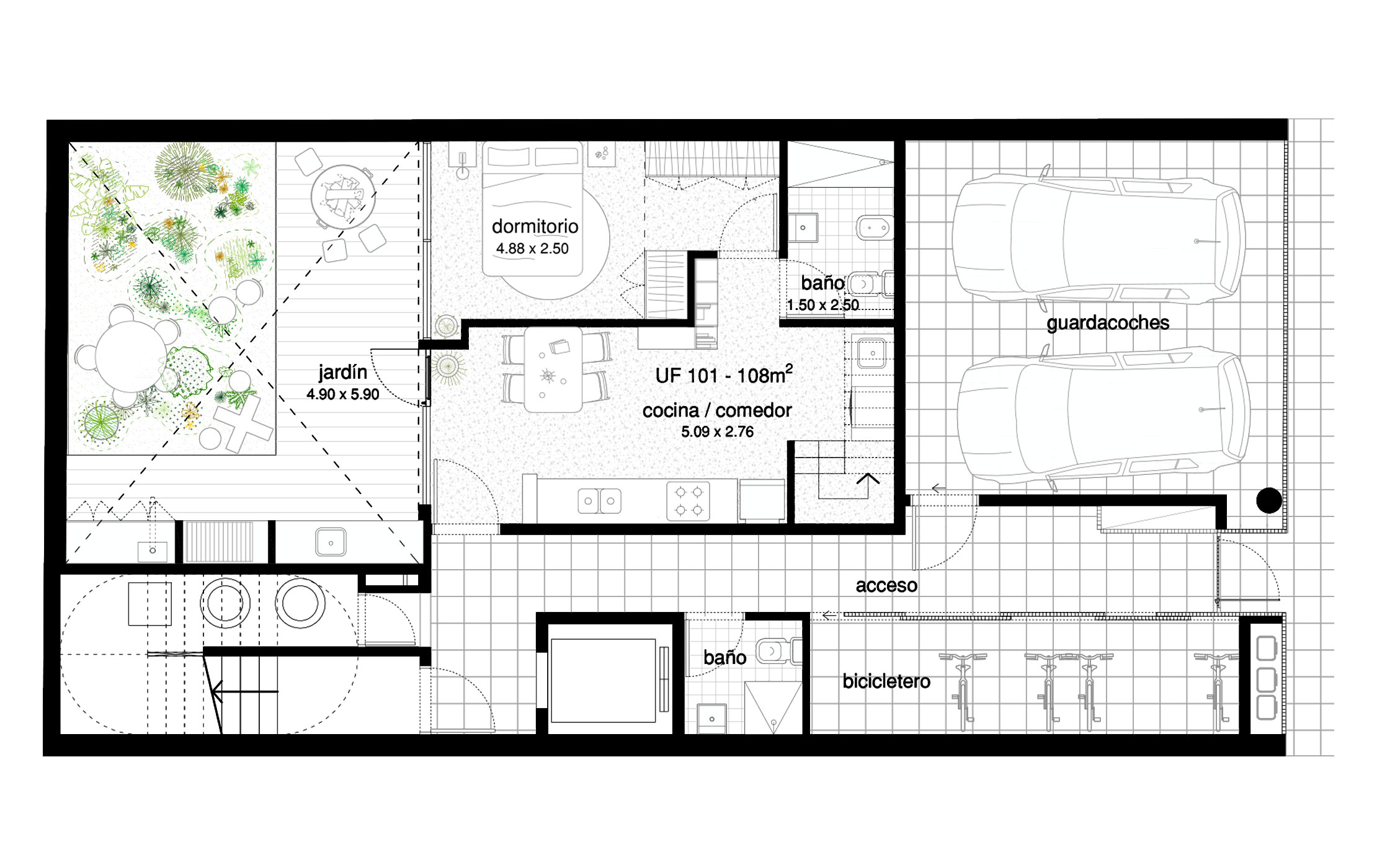
El edificio cuenta con 8 departamentos. La planta baja tiene al frente dos cocheras (unidades funcionales), acceso peatonal y espacio guarda bicicletas para todas las unidades.
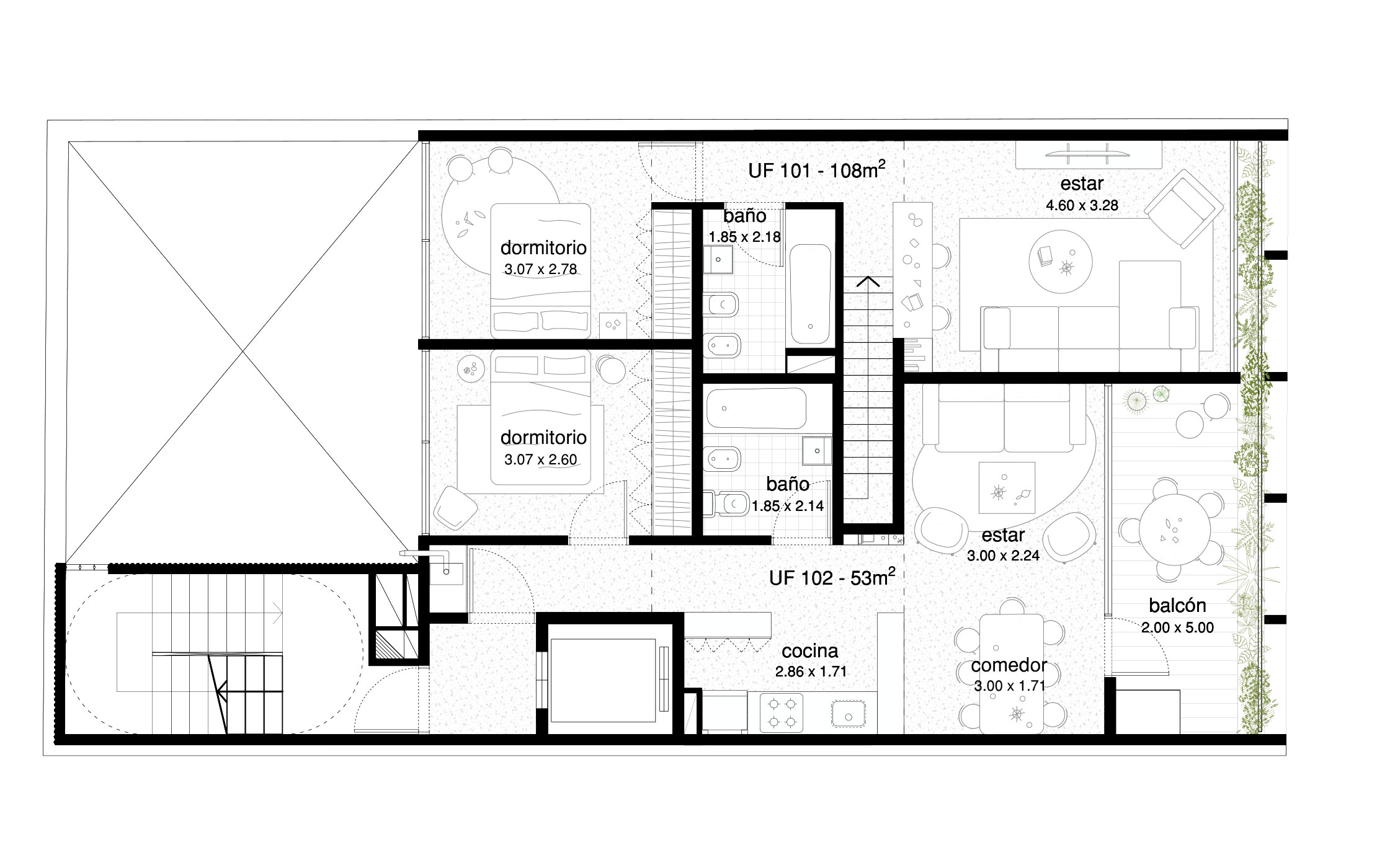
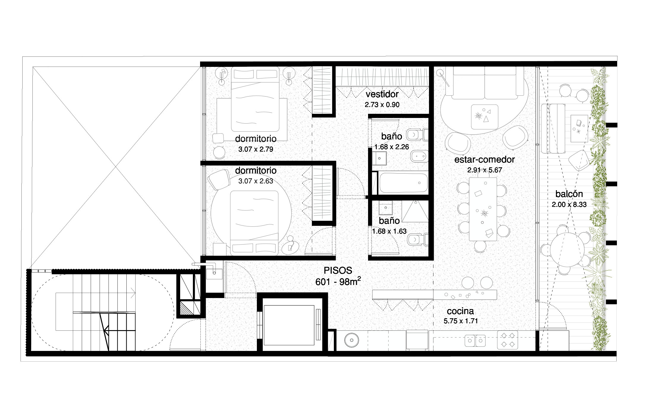
En la planta baja y el primer piso se organiza una unidad tipo casa en dúplex con jardín integrado y en el primer piso un departamento de dos ambientes con balcón y cocina integrados. Del segundo al séptimo pisos se organizan pisos completos de tres ambientes, con estar-comedor, cocina-lavadero y balcón aterrazado a la calle, y dos dormitorios al contrafrente.
En el último piso hay una terraza para uso común con quincho, deck, cubierta verde con pasto, plantas y un árbol, diseñado para pequeños eventos sociales.

Los departamentos están equipados con calefacción individual por piso radiante, preinstalación de climatización, pisos de terrazo, griferías FV, grandes paños de vidrio.
Las cocinas fueron concebidas con mesadas de cuarzo, doble bachas de acero inoxidable, anafe y horno por separado.
posibilidad de personalización
- Enchapados de madera natural en muros interiores de estar, comedor y frentes de muebles de cocina*.
- Ventanas de aluminio anodizado con herrajes de cierre multipunto y DVH*.
- Madera en solados* o granítico pulido in situ continuo en todas las unidades.
- Posibilidad de configuración de lay-out a medida (adaptable según verticalidad del proyecto).
- Muebles de cocina personalizables en terminaciones y diseño.
* Especificaciones configurables y opcionales. Podrán suponer costos adicionales.

múltiples opciones
de configuración
y personalización
configuración a medida
Posibilidad de elección de terminaciones a gusto de cada inversor. Pocas unidades de diseños únicos y custom.
planos
unidades
distribucion
PH con jardín y árboles. Estudio de 2 ambientes. Pisos de 3 ambientes con balcones aterrazados. Duplex con balcón y terraza. Terraza con quincho, cubierta verde y solarium.


- 101
PH con jardín. 3 ambientes.
PB/1er piso.
[76.70 m2]
Superficie cubierta
[2.15 m2]
Superficie semi-cubierta
[31.44 m2]
Superficie descubierta
- 102
Casa/Estudio. 2 ambientes.
1er piso.
[42.99 m2]
Superficie cubierta
[12.28 m2]
Superficie semi-cubierta
- 201
Piso. 3 ambientes.
2do piso.
[82.87 m2]
Superficie cubierta
[14.84 m2]
Superficie semi-cubierta
- 301
Piso. 3 ambientes.
3er piso.
[82.87 m2]
Superficie cubierta
[14.84 m2]
Superficie semi-cubierta
- 401
Piso. 3 ambientes.
4to piso.
[82.87 m2]
Superficie cubierta
[14.84 m2]
Superficie semi-cubierta
- 501
Piso. 3 ambientes.
5to piso.
[82.87 m2]
Superficie cubierta
[14.84 m2]
Superficie semi-cubierta
- 601
Piso. 3 ambientes.
6to piso.
[78.19 m2]
Superficie cubierta
[19.80 m2]
Superficie descubierta
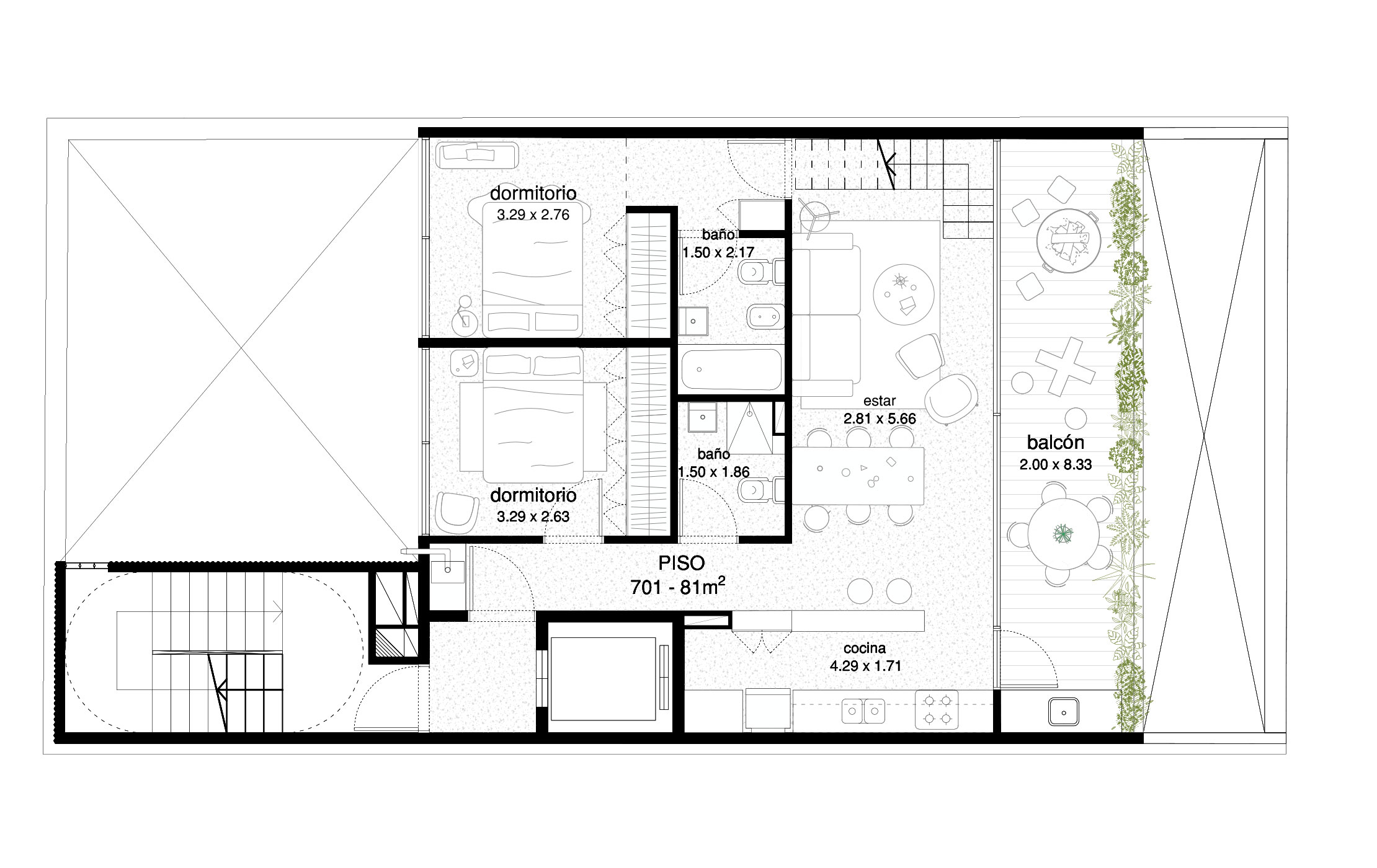
- 701
Duplex con terraza propia. 3 ambientes.
7mo piso.
[65.81 m2]
Superficie cubierta
[38.10 m2]
Superficie descubierta
contacto
contacto
Contactate con nosotros para conocer más sobre las unidades disponibles.











